間取り
4LDK+WIC
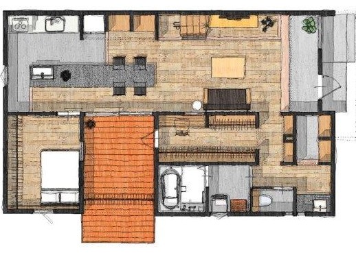
1階
【広々玄関】 玄関に入るとズドーンと約11mの長さのLDKが出迎えます。 【帰宅動線】 リビングに向かう動線とは別にSICへ行ける動線を確保。 SIC→靴・帽子などを脱ぐ→洗面→手洗いうがい→と流れる帰宅動線は使い勝手バツグン!◎ 【ダイニングキッチン】 このお家の一番のポイントとなる4.5mのダイニングテーブルは料理、勉強、 家族や友人とのパーティーなどフレキシブルに使用できます。 また、キッチンの部分を一段低めに設計。 ダイニングテーブルに座っている人と目線を合わせることができるのもポイントです◎ 【寝室】 将来、1階で生活が完結できるように1階に寝室を配置。 寝室内にパイプを設け、普段着の収納や室内干しに使用できます。
2階
【大空間吹き抜け】 約12帖もある大空間の吹き抜け。 南東に大きな窓を設け、1階にふんだんに光を落とします。 1階・2階を吹抜けを通じて繋がることで家族の距離感が近くなります。 【フリースペース】 フリースペースは子ども室や寝室、ゲストルームやサンルームなど様々用途でしようできます!◎
ギャラリー
ダイニングスペースで存在感を放つ長さ4.5mのテーブル
食卓としてはもちろん、撥水性の高いモールテックス製のため調理台としても活用でき、セカンドシンクを設けているので利便性も抜群となっております。また、子供たちと同じ目線で会話できるダウンフロアになったキッチンとなっております。
玄関ドアを潜り抜けた先に広がる奥行11mのリビングダイニング
オープンスタイルの玄関から最奥のキッチンまでワンフロアの広々とした空間。ソファ横の黒い内窓はウォークインクローゼットにつながっております。
1階へ遮ることなく光を通すスケルトン階段
スケルトン階段からこぼれる光がリビングを優しく照らしております。
リビング上部の大きな吹き抜け
ダイニング上部には南と東側に高窓を設け、たっぷりの光を大きな吹抜けを通して室内へと届けております。
玄関土間から続く裏動線
シューズインクローゼットを通り抜けた先には、キッチン同様モールテックスで造作された洗面台があります。帰宅後、荷物を収納してそのまま手洗いをしてリビングへとつながるので帰宅動線がスムーズとなっております。
バッグヤードのようなウォークインクローゼット
家事室やスタディコーナーとしても使用可能となっております。テラスにもつながるので、洗濯物の外干しをする際の家事の時短にも貢献してくれています。
プライベート空間な中庭
リビングとウォークインクローゼットからアクセス可能。また外からの視線を遮るプライベートな中庭となっているので家族でBBQを楽しむことはもちろん、子供が遊んだりしていてもリビングから見ることができるので安心となっております。
外を眺めながら作業ができる子供室
オリジナルの机と本棚を造作した子供部屋は、机を買う必要がないのでお部屋のスペースを減らすことなく活用できます。また、窓から光が入るので明るい手元で本を読んだり宿題をしたりすることができます。
将来を見据えた1階寝室
将来、1階で生活が完結できるように1階に寝室を配置。 寝室内にパイプを設け、普段着の収納や室内干しに使用できます。
フリースペース
2階に子ども室とは別に設けたフリースペースは子ども室や寝室、ゲストルームやサンルームなど様々用途で使用できます!◎
【グレー×木】の植栽が映える外観
全体(メイン)は飽きのきにくい薄いグレー調を採用。 ファサード面にはアクセントで素材の違う外壁を採用。 軒天にはレッドシダー張り、「グレー×木」を組み合わせた。 3色と色を抑えているので植栽が映えます。
こだわりの造作洗面台
帰宅してすぐに手洗いができる位置に計画。スリット窓からの光で明るい洗面に。 個性的なタイルと機能性もバツグンなモールテックスカウンター・洗面器で使うのも気分が上がります!
物件情報
施工価格
2,800万円~3,150万円
構造
2階建て
間取り
4LDK+WIC
延床面積
114.81㎡(34.73坪)
敷地面積
175.98㎡(53.23坪)
坪単価
80万円~90万円
工法
木造軸組
施工期間
2022年5月~2022年11月
物件の特長
考えられた動線
帰宅動線
リビングに向かう動線とは別にSICへ行ける動線を確保。 SIC→靴・帽子などを脱ぐ→洗面→手洗いうがい→と流れる帰宅動線は使い勝手バツグン!◎
家事動線
このお家の一番のポイントとなる4.5mのダイニングテーブルは料理、勉強、 家族や友人とのパーティーなどフレキシブルに使用できます。また、配膳・片付けもラクラク!◎